velrob
Well-Known Member
I was trying to lay the new floor in this weekend and somehow my right frame rail isnt quite right. luckily i didnt weld it full in. My left rail could be fubar as well. the new floor has half inch gap between the wheel well and the floor on the right side.
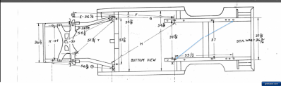
I was installing the left rail while the right was still there (old) and used those measurements but when im measuring point to point on the left side it reads 54" (See attached picture for the 53 1/2 measurement). I didnt have the drawings at the time. Is it possible the rails moved half an inch (old rails that is?). I used the old rail as measurement while installing the new one.
I was hoping someone could measure theirs and let me know the size from the two locations. Edge to edge.
how much tolerance is allowed on the rear rails to be off?
thanks for any help.

I was installing the left rail while the right was still there (old) and used those measurements but when im measuring point to point on the left side it reads 54" (See attached picture for the 53 1/2 measurement). I didnt have the drawings at the time. Is it possible the rails moved half an inch (old rails that is?). I used the old rail as measurement while installing the new one.
I was hoping someone could measure theirs and let me know the size from the two locations. Edge to edge.
how much tolerance is allowed on the rear rails to be off?
thanks for any help.



















