• When you click on links to various merchants on this site and make a purchase, this can result in this site earning a commission. Affiliate programs and affiliations include, but are not limited to, the eBay Partner Network.

And so it begins..... my new garage

I'm at 4 300' loops on mine...the sq. ft. to linear foot ratio works out close for both your plan and my layout I put in my floor. Not sure about the 3 loops at 200' vs. the 2 loops at 300'...

Do you know where you want the loops to terminate? At what area of the drawing I sent you are you bringing your hot water in at? Once you figure out where you want to install the manifold I can start from there and then return there...

Biggest thing I have seen is you want the perimeter loops closer together as that is where the majority of the heat loss is concentrated...Out in the center the loops would be farther apart...

You might want to look at how your going to buy your pex...mine came in 300' lengths and that was what I ended up using.

Let me know what you decide and I'll try to modify the sketch accordingly...

FWIW I too know how much of a PITA having subs can be...
I want all of the terminations 4' in from the back corner and up close to the main garage wall, here's a generic sketch (x marks the spot). This will put it where I can run the plumbing through the mezzanine floor inside and still have it out of harm's way in the addition. I'll likely build a small workbench over the plumbing since I'll need one anyways and it will also protect the plumbing. Garage door is 16' and centered.
15709901248928922301453105219110.jpg
 
250 feet is max for 1/2 in pex 200 is better
I buy the 1000 ft rolls as it works out better for me
 
Devon...Do you want to do three loops terminating at the X with 200 linear foot in each loop?

I can modify the existing plan if that's what your looking to do...

Being as that this is an addition it would only need the loops closer together on the 3 exterior wall elevations...

How far up the existing garage wall do you want to install the manifold as I need to add that footage in also...
 
See how this looks to you...

I allowed 4' vertical supply and return for each loop to the manifold...

Each loop came in at 199 linear feet but since you will be radius's and my software can only do corners it may realistically be about 195 or so...

I tried to even up the amount of loops at the perimeter walls but the pink loop may return a slight bit cooler having more exterior wall exposure...This can be controlled with water speed at the valve...

FWIW I was told that in a perfect world your temperatures at the return side should be pretty even...
The 6 loops where they return to the wall where your X was located would be supply at the top and then return of that loop...next would be supply of loop 2 and loop 2 return...return of loop 3 and supply of loop 3 at the bottom...

You can move them around at the manifold however you need them as it won't really affect the overall length...

I try to set them up as supply going to the coldest areas 1st and returning thru the middle of the slab...

ii_k1r412xx0.png
 
See how this looks to you...

I allowed 4' vertical supply and return for each loop to the manifold...

Each loop came in at 199 linear feet but since you will be radius's and my software can only do corners it may realistically be about 195 or so...

I tried to even up the amount of loops at the perimeter walls but the pink loop may return a slight bit cooler having more exterior wall exposure...This can be controlled with water speed at the valve...

FWIW I was told that in a perfect world your temperatures at the return side should be pretty even...
The 6 loops where they return to the wall where your X was located would be supply at the top and then return of that loop...next would be supply of loop 2 and loop 2 return...return of loop 3 and supply of loop 3 at the bottom...

You can move them around at the manifold however you need them as it won't really affect the overall length...

I try to set them up as supply going to the coldest areas 1st and returning thru the middle of the slab...

View attachment 850355
That looks terrific, I really appreciate the effort you put into laying this out. I should be getting to that part possibly this weekend so timing was perfect.

In my head I was think 3 pie shapes where the long side of each run would be on an outside wall then all triangulate back? Another generic sketch that just shows the zones lol.

15711780571108479095113275145955.jpg
 
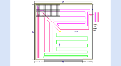
You can try this...Hopefully the 3rd time is a charm...
Note the loop 1 supply is 1st then loop 1 return...
loop 2 supply and then loop 2 return
loop 3 return and then loop 3 supply...all read top to bottom.

The key to keeping this straight in your head and not ending up short at the end will be positioning of the loop 1 point at the location of the yellow rectangle...use those dimensions from the existing building and the garage door to locate that point.

Loops are the same 199 Linear foot each...191 in the floor and 4' each on supply and return heading up the wall... The start stop point at 4' from the corner is what makes it a little more difficult as your loop 2 supply runs through a good section of the slab before reaching the outside wall...ditto for loop 3 against the existing garage...

In the end we very well may be over thinking this a little but I'd rather be safe than sorry...

ii_k1sk21fv0.png
 
You can try this...Hopefully the 3rd time is a charm...
Note the loop 1 supply is 1st then loop 1 return...
loop 2 supply and then loop 2 return
loop 3 return and then loop 3 supply...all read top to bottom.

The key to keeping this straight in your head and not ending up short at the end will be positioning of the loop 1 point at the location of the yellow rectangle...use those dimensions from the existing building and the garage door to locate that point.

Loops are the same 199 Linear foot each...191 in the floor and 4' each on supply and return heading up the wall... The start stop point at 4' from the corner is what makes it a little more difficult as your loop 2 supply runs through a good section of the slab before reaching the outside wall...ditto for loop 3 against the existing garage...

In the end we very well may be over thinking this a little but I'd rather be safe than sorry...

View attachment 850728
That looks perfect, not that the other one didn't bit this one looks like the picture in my head lol. We probably are overthinking it but I've seen people install these and think it was a waste of money and people who swear by them, to me that's the difference between someone who took the time to think it through and those who didn't.
 
The biggest thing is equal flow
Same length and first loop out of header is the last one on return so it is balanced
outer walls with greatest heat loss most important the rest no much
 
You can try this...Hopefully the 3rd time is a charm...
Note the loop 1 supply is 1st then loop 1 return...
loop 2 supply and then loop 2 return
loop 3 return and then loop 3 supply...all read top to bottom.

The key to keeping this straight in your head and not ending up short at the end will be positioning of the loop 1 point at the location of the yellow rectangle...use those dimensions from the existing building and the garage door to locate that point.

Loops are the same 199 Linear foot each...191 in the floor and 4' each on supply and return heading up the wall... The start stop point at 4' from the corner is what makes it a little more difficult as your loop 2 supply runs through a good section of the slab before reaching the outside wall...ditto for loop 3 against the existing garage...

In the end we very well may be over thinking this a little but I'd rather be safe than sorry...

View attachment 850728
Thanks a bunch, pretty well got it nailed down over the weekend and man are my fingers raw from pulling zip ties! I had to tweak the layout just a fuzz, didn't realize how much that French drain was going to mess things up but I think I've got a good layout, really close to what you posted. I'll finish tweaking it and get a picture.

Here's what else got done... sided:thumbsup:
20191102_150800.jpg
 
At the rate I'm going I'd be further ahead to ride out and hang out in your heated shop than plan on being in mine...
I spent all weekend in "trim" hell...Never have truly finished the wife's kitchen after putting all of the new floors in...After about 50 trips to the garage to use the saw I said the hell with it and removed it from the table and put it on the back deck...between the door casing...window casing and the wood trim on top of the new 1/2 walls around the stairs I almost have it finished...
I going to drag this out till spring and concentrate on everything inside that I can get done...It'll be far beyond just finishing the kitchen and include painting and flooring in several other rooms too...
 
I could LIVE in the garages you guys build! Me, I am having hard time deciding whether to offer one of my "herd" for sale, or spend $600 for lumber and barn tin to put a rood over one! Dirt floor! Yes my labor is free!
 
I could LIVE in the garages you guys build! Me, I am having hard time deciding whether to offer one of my "herd" for sale, or spend $600 for lumber and barn tin to put a rood over one! Dirt floor! Yes my labor is free!
Lol, been there done that!
 
At the rate I'm going I'd be further ahead to ride out and hang out in your heated shop than plan on being in mine...
I spent all weekend in "trim" hell...Never have truly finished the wife's kitchen after putting all of the new floors in...After about 50 trips to the garage to use the saw I said the hell with it and removed it from the table and put it on the back deck...between the door casing...window casing and the wood trim on top of the new 1/2 walls around the stairs I almost have it finished...
I going to drag this out till spring and concentrate on everything inside that I can get done...It'll be far beyond just finishing the kitchen and include painting and flooring in several other rooms too...
That's about where I was last year, she's asking for more but I made it clear the garage is getting done before I take on anymore.
 
It's a go, the stars finally aligned and the floor is getting poured next Friday!! Next up is figuring out the plumbing so I can get the PEX configuration right where it exits the concrete. This weekend I'll get it back on the rebar chairsonly a lot more of them and play around with laying plywood on it so I know we can safely walk on it.
20191117_163527.jpg
 
:bananadance:Finally no more talk about radiant heat.. onto the rest of the garage addition.

I was stressing out about getting the concrete down while walking on the suspended mesh but it went really smooth. Only hiccup was his power troweler broke a pulley, fortunately he was almost done so it's not even noticeable.
20191129_111034.jpg
20191129_152537.jpg
 
You guys sure do stuff differently over there.
We pour the entire slab at once out here.

IMG_1176.JPG
IMG_1178.JPG

Why do you guys place the concrete in two sessions?
 
Reasons maybe lack of man power. Power screed might not be long enough. Availability of concrete or any number of other reasons.
 
You guys sure do stuff differently over there.
We pour the entire slab at once out here.

View attachment 874606 View attachment 874607
Why do you guys place the concrete in two sessions?
You assume to much lol. The concrete came in 2 6yd batches 30 minutes apart, we poured one side and no sooner than he leveled the first we were pouring the 2nd so no it's one pour. He did it this way to minimize walking on the PEX.
 
You assume too much lol. The concrete came in 2 6yd batches 30 minutes apart, we poured one side and no sooner than he leveled the first we were pouring the 2nd so no it's one pour. He did it this way to minimize walking on the PEX.
No, my point is that out here, the entire slab is poured before any framing is done. All perimeter walls rest ON the concrete.
 
No, my point is that out here, the entire slab is poured before any framing is done. All perimeter walls rest ON the concrete.
You don't have much rain sooo framing and then pouring the stab is one reason. Another is cold weather, they can add calcium to the concrete.
 
Auto Transport Service
Back
Top